№ об-я:729
Опубл.:30/03/2022
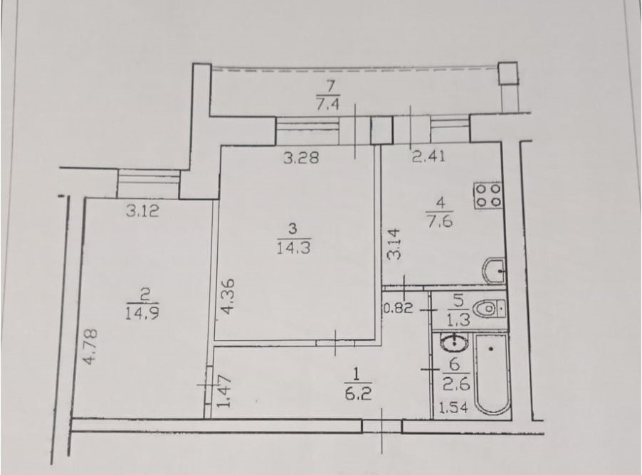
Двухкомнатная квартира. Мубарякова 10/1
Цена:
5000000
р.
Продается двухкомнатная квартира общей площадью 50 кв.м в кирпичном доме 1988 года постройки. На втором этаже 9 этажного дома.
Жилая площадь 35 кв.м, кухня 7.4 кв.м, лоджия 7 кв.м
Состояние: косметический ремонт, лоджия застекленная.
Юр.ситуация: 1 взрослый собственник, есть обременение.
В шаговой доступности школы, дет.сады, макдональдс, магазины, поликлиники.